Casa Recién Reformada en Venta en Aloha Gardens con Vistas Panorámicas
Descubra la mejor residencia en Aloha Gardens: una casa adosada bellamente reformada y perfectamente ubicada en el corazón de Nueva Andalucía, Marbella.Ubicada dentro de una de las comunidades cerradas más solicitadas de la zona, esta propiedad excepcional combina lujo contemporáneo, vistas panorámicas al mar y una ubicación privilegiada a solo unos pasos de restaurantes, cafeterías, clubes de pádel y tenis, y a solo minutos de campos de golf de clase mundial como Los Naranjos, Aloha y Las Brisas.
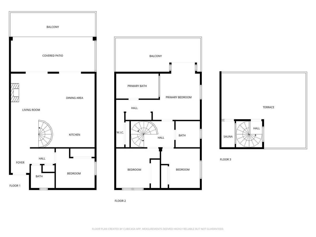
Con 255 m² de espacio construido más generosas terrazas, la casa se distribuye en tres elegantes niveles y cuenta con 4 dormitorios y 3 baños.Su orientación sur asegura luz natural durante todo el día, mientras que sus terrazas abiertas disfrutan del sol desde la mañana hasta la noche.Desde la planta baja, la propiedad disfruta de hermosas vistas al mar.
Planta Baja
Un diseño luminoso y de planta abierta le da la bienvenida al entrar, con una elegante sala de estar perfectamente conectada a una moderna cocina equipada con Miele.Grandes puertas corredizas se abren a una amplia terraza completa con una cocina al aire libre y una cómoda sala de estar, ideal para cenar, entretenerse o simplemente relajarse.Este nivel también incluye un dormitorio de invitados y un baño completo.
Primer Piso
Este nivel está dedicado a los dormitorios principales.La tranquila suite principal cuenta con baño privado y acceso directo a una terraza privada equipada con un sofá, chimenea al aire libre y tumbona.Dos dormitorios de invitados adicionales comparten un baño bien equipado, lo que hace que este piso sea perfecto para familias e invitados.
Solárium en la azotea
El tercer nivel alberga la joya de la corona de la casa: un espectacular solárium en la azotea con jacuzzi, sauna y una cocina al aire libre totalmente equipada.Desde aquí, disfrute de impresionantes vistas panorámicas de Nueva Andalucía y el mar Mediterráneo, un entorno inolvidable para descansar durante el día y reunirse al atardecer.
Funciones adicionales
Sistema de sonido Sonos en toda la propiedad, incluidas todas las terrazas.
Dos plazas de aparcamiento: una privada y otra alquilada (con opción de ampliar)
Acceso a tres piscinas comunitarias bellamente mantenidas.
Urbanización impecablemente mantenida con exuberantes jardines y encanto mediterráneo.
Perfecta como residencia permanente, casa de vacaciones o inversión de alquiler de alto rendimiento (tanto a corto como a largo plazo), esta propiedad es ampliamente considerada como la mejor unidad en todo el desarrollo de Aloha Gardens, una oportunidad única en uno de los barrios más atractivos de Marbella.
Tenga en cuenta que la ubicación mostrada en este mapa NO corresponde a la propiedad real, sino a la ubicación general y no es fiable.
Características
Terraza
Elevar
Transporte cercano
Terraza
Doble acristalamiento
Armarios ajustados
Solárium
Wifi
Sauna
Jacuzzi
Fibra óptica
Orientación
Este
Sur
Oeste
Climatización
Aire acondicionado
Fría de aire acondicionado
A/C caliente
Vistas
Mar
Montaña
Vistas panorámicas
Vistas Urbanas
Posición
Cerca del golf
Cerca del puerto
Urbanización
Cerca del mar
Cerca de las tiendas
Cerca de la ciudad
Cerca de las escuelas
Ciudad
Cerca del bosque
Cerca de Marina
Estado
Excelente
Renovado recientemente
Reformado recientemente
Piscina
Comunal
Con Calefacción
Muebles
Completamente Amueblada
Cocina
Cocina Equipada
Jardin
Comunal
Seguridad
Complejo cerrado
Seguridad 24 horas
Persianas
Caja fuerte
Aparcamiento
Párking Subterráneo
Cochera
Más de uno
Servicios Públicos
Electricidad
Categoría
Casas de vacaciones
Inversión
Golf
Lujo
Reventa
Contemporáneo
Gastos de comunidad: 0 euros / mes
Tasas de eliminación de residuos: 0 euros / año
IBI ( Impuesto sobre Bienes Inmuebles ): 0 euros / año