ECOLOGICAL PASSIVE VILLA IN SOTOGRANDE WITH PARTIAL VIEWS OF THE SEA
This property will be constructed on 1 floor with the highest specifications possible and consisting of;
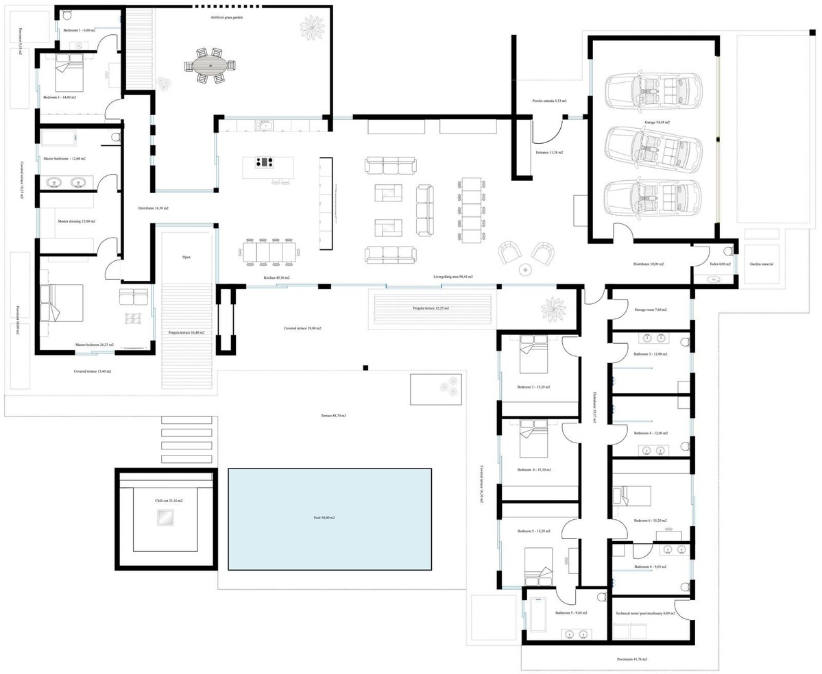
Entrance hall with wardrobe, huge living/dining room separated with kitchen wardrobes but still partly open. Through a distributor you go to the master bedroom with ensuite bathroom and dressing. In this part of the villa there is also another bedroom with ensuite bathroom.
The fully fitted kitchen with all appliances give out to a walled courtyard with a pergola terrace.
On the other side of the villa, we have a distributor with guest toilet, a huge garage, storage room, another distributor with 2 bedrooms with 2 bathrooms and 2 further bedrooms with ensuite bathroom.
Furthermore, there are several covered terraces, pergola terraces and terrace with a chill-out, heated swimming pool and an open garden storage.
Pictures of the bathrooms and kitchen are only examples final choice of the finishings shall be for the client within the chosen line that we propose.
Example of some of the specifications,
- Interior and exterior floor tiles from GRESPANIA or LIVING CERAMICS
- Bathroom walls with COVERLAM or LIVING CERAMICS plates 2700X1200
- Bathrooms from ROCA – DURAVIT – VILLEROY BOCH – GEBERIT – HANSGROHE OR SIMILAR
- Aerothermia/airconditioning
- Electric underfloor heating in the bathrooms
- Hydraulic underfloor heating in living room, and bedrooms
- Ceiling high windows from Reynaers or similar with a sunken track, Planistar glass of 5+5/chamber/4+4
- Ceiling high pivot entrance door 1,50 wide
- Ceiling high and 1-meter wide interior doors
- Fully fitted kitchen with aluminum frame doors and covered with COVERLAM (Colour to choose)
- Island with COVERLAM 3600X1400 almost no visible joints
- White goods from Bosch or AEG
- Heated pool
- 24 solar panels
- 2 lithium batteries of each 10kW
- Car charger
Houd er rekening mee dat de locatie die op deze kaart wordt weergegeven NIET de werkelijke locatie is, maar de algemene locatie en er kan niet op worden vertrouwd.
Extra's
Overdekt terras
Privéterras
Opslagruimte
Ensuite badkamer
Dubbele beglazing
Gemonteerde kasten
Bijkeuken
Domotica
Restaurant ter plaatse
Glasvezel
Toegang voor mensen met verminderde mobiliteit
Zonoriëntatie
Oosten
Zuiden
Zuidoost
Zuidwesten
Klimaatbeheersing
Airconditioning
Koud A/C
Hete a/c
U/F verwarming
U/f/h Badkamers
Uitzicht
Zee
Berg
Panorama
Land
Tuin
Zwembad
Stedelijk
Ligging
Dicht bij golf
Verstedelijking
Dicht bij scholen
Huidige Staat
Nieuwbouw
Zwembad
Verwarmd
Privé
Meubilering
Optioneel
Keuken
Volledig passend
Tuin
Privé
Gemakkelijk onderhoud
Beveiliging
Omheind complex
24 -uurs beveiliging
Alarmsysteem
Invoertelefoon
Veilig
Parkeergelegenheid
Garage
Privé
Bedekt
Open
Meer dan één
Voorzieningen
Elektriciteit
Drinkbaar water
Telefoon
Fotovoltaïsche zonnepanelen
Zonne -waterverwarming
Categorie
Investering
Golf
Luxe
Buiten plan
Modern
Gemeenschapskosten: €0 / maandelijks
Vergoedingen voor afvalverwijdering: €0 / jaarlijks
IBI ( Belasting over onroerend goed ): €0 / jaarlijks