Off-plan luxe eigentijdse ecologische villa met panoramisch uitzicht in Monte burgemeester-Benaavis-totaal gebouwd op 3 verdiepingen met een totaal geconstrueerd gebied van 1.334,00 m2
Deze eigentijdse luxe villa heeft gewoon alles ... het zal worden gebouwd op 2 of 3 verdiepingen, klantenkeuze, op een perceel van ongeveer 7,825 m2 bij burgemeester van Monte, Benahavis, een luxe verstedelijking in een groen gebied.
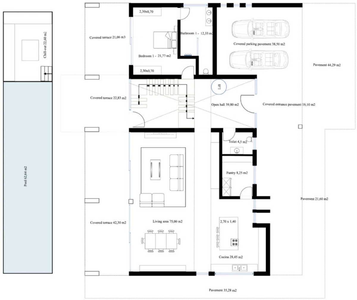
Begane grond: dubbele hoogte hal met trap, pneumatische lift en gasttoilet, een grote woon-/eetkamer die het grote terras met zwembad en chill-out, volledig uitgeruste keuken met een pantry met een pantry geeft.Er is ook een slaapkamer met een ensuite badkamer op de begane grond.
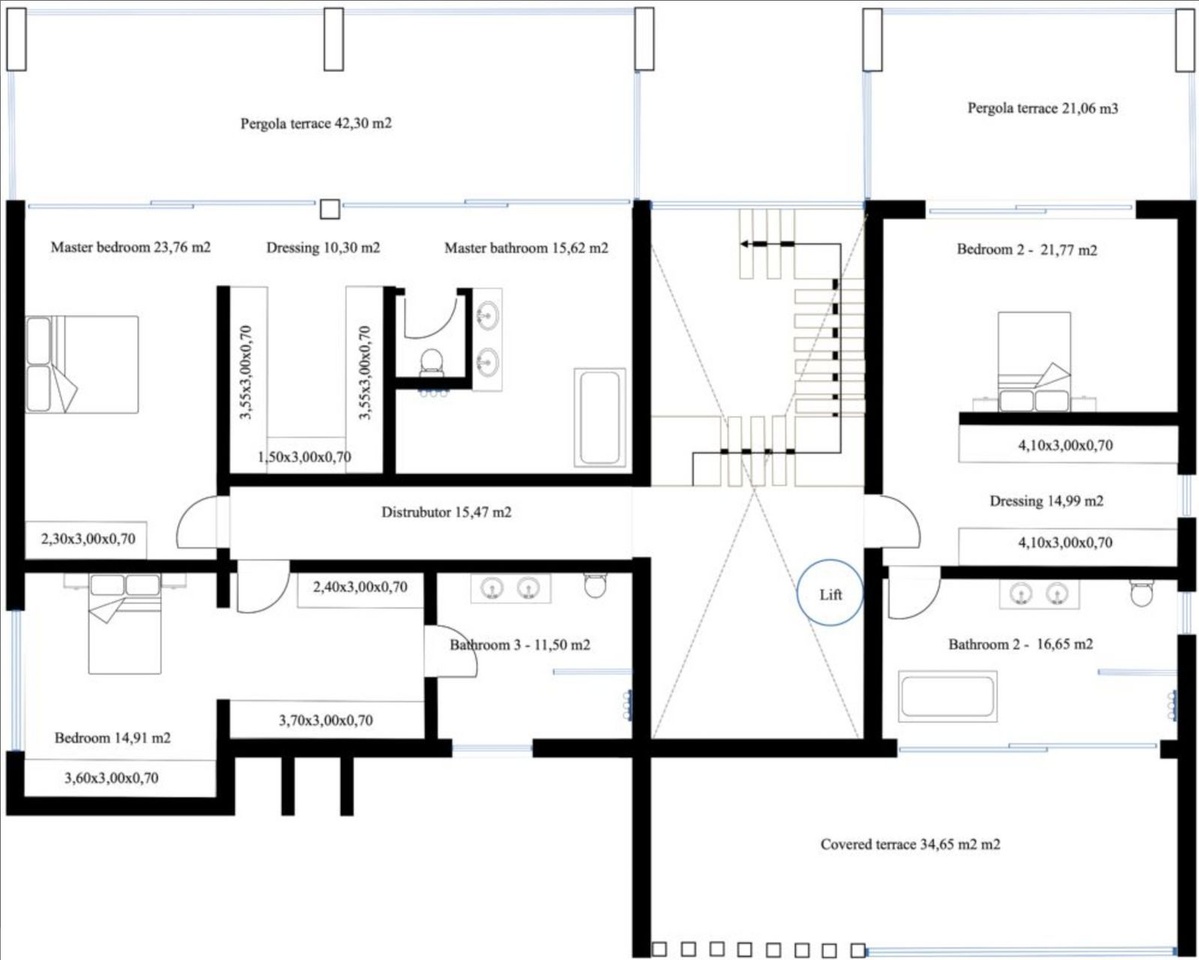
Eerste verdieping: hoofdslaapkamer met en-suite badkamer met 2 kleedkamers en 2 privéterrassen op deze verdieping, we hebben ook nog eens 2 slaapkamers met ensuite badkamers en dressing.Een van de slaapkamers heeft toegang tot het terras.
Kelder;Hall, garage, toilet, sauna, speelkamer, opbergruimte en technische zwembadkamer.
Bouwtijd 12-14 maanden na licenties!
De foto's van de badkamers en keukens zijn voorbeelden van hoe we dit voor u kunnen bouwen, de uiteindelijke beslissing zal van u zijn.Voorbeeld van enkele van de specificaties,
- Interieur- en buitentegels van Grespania 600x600 - 800x800 - 1200x1200 (kleur en grootte om te kiezen)
- Badkamerwanden met Coverlam -platen (Grespania) 2700x1200 (kleur om te kiezen)
- badkamers van Roca of soortgelijk
- Keuken met stalen framedeuren bedekt met coverlam en keukeneiland van Coverlam
- Aerothermie/airconditioning
- onder de vloer elektrische verwarming in de badkamers
- Hydraulische verwarming onder de vloer op de grond Fsaloor en de eerste verdieping
- plafondhoge ramen met een gezonken spoor, 5+5/kamer/6+6
-plafond hoog en 1 meter brede binnendeuren
- Plafond High Pivot Door en 1,50 breed
- Volledig gemonteerde keuken
- huishoudelijke apparaten uit Bosch of soortgelijk
- 20 zonnepanelen
- 2 x 10 kW batterijen
- autolader
- Domotica
- Elektrische zonblinden in de woonkamer en keuken
- schemering tot het ochtendgloren verlicht buiten
- LED -lichten op de oprit
- Led plafondlichten in volledige villa
- Verwarmd zwembad
Optioneel
- Volledige keuken van Coverlam met aluminium framedeuren (prijs op aanvraag)
- Volledige kelder/garage/games kamer, extra slaapkamer en badkamer (prijs op aanvraag)
Wij zijn een bouwbedrijf, key-in-hand, dat elke mogelijkheid die u kunt bedenken ontwerpen en construeren.Als u geen ontwerp van ons ziet dat u leuk vindt, ontwerpen we een totaal nieuwe villa voor u volgens uw ideeën en input.
Hoewel we de voorkeur geven aan het bouwen van ecologisch gebouw, kunnen we van traditionele constructie naar ecologische constructies construeren, het hangt allemaal van u af.
Houd er rekening mee dat de locatie die op deze kaart wordt weergegeven NIET de werkelijke locatie is, maar de algemene locatie en er kan niet op worden vertrouwd.
Extra's
Overdekt terras
Tillen
Privéterras
Opslagruimte
Ensuite badkamer
Dubbele beglazing
Gemonteerde kasten
Wifi
Sauna
Speelruimte
Tennisbaan
Bijkeuken
Domotica
Restaurant ter plaatse
Kelder
Glasvezel
Toegang voor mensen met verminderde mobiliteit
Zonoriëntatie
Oosten
Zuiden
Zuidoost
Zuidwesten
Klimaatbeheersing
Airconditioning
Koud A/C
Hete a/c
U/F verwarming
U/f/h Badkamers
Uitzicht
Berg
Panorama
Land
Tuin
Zwembad
Stedelijk
Straat
Ligging
Dicht bij golf
Verstedelijking
Voorsteden
Berg Pueblo
Dicht bij bos
Huidige Staat
Nieuwbouw
Zwembad
Verwarmd
Privé
Meubilering
Optioneel
Keuken
Volledig passend
Tuin
Privé
Gemakkelijk onderhoud
Beveiliging
Omheind complex
24 -uurs beveiliging
Alarmsysteem
Elektrische jaloezieën
Invoertelefoon
Veilig
Parkeergelegenheid
Ondergronds
Garage
Privé
Bedekt
Open
Meer dan één
Voorzieningen
Elektriciteit
Drinkbaar water
Telefoon
Fotovoltaïsche zonnepanelen
Zonne -waterverwarming
Categorie
Vakantiehuizen
Investering
Golf
Luxe
Buiten plan
Modern
Gemeenschapskosten: €0 / maandelijks
Vergoedingen voor afvalverwijdering: €0 / jaarlijks
IBI ( Belasting over onroerend goed ): €0 / jaarlijks