Moderne ecologische villa in La Reserva de Sotogrande met fantastisch panoramisch uitzicht en 4 slaapkamers met 4 badkamers ensuite en een gastentoilet.
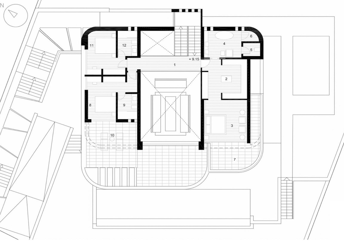
Deze woning wordt gebouwd op 3 verdiepingen en bestaat uit;
Kelder: garage, installatieruimte, opslagruimte, verdeler, watervalmachinekamer, woonkamer, biljartkamer, 1 slaapkamer met groot raam en daglicht, ensuite badkamer, bioscoopruimte, ruimte voor zwembadinstallaties en een Zen-terras.
Begane grond: hal met distributeur, gastentoilet, bijkeuken / wasruimte, volledig ingerichte keuken, eetkamer, salon, woonkamer, 1 slaapkamer met ensuite badkamer, zwembad, chill-out, BBQ en tuin, terrassen en ca overdekt terras.
Eerste verdieping; verdeler, kleedkamer, hoofdslaapkamer met Home Spa, toilet, douche en terras, nog een badkamer met ensuite badkamer en terras.
Zoals je kunt zien is er geen lift in de plannen, maar als de klant dat wil worden deze geleverd zonder extra kosten en zal de totale bebouwde oppervlakte toenemen met ca. 20,00 m2.
Foto's van badkamers en keukens zijn slechts voorbeelden van hoe het zou kunnen worden, maar de uiteindelijke keuze is aan de klant!
Voorbeeld van enkele specificaties;
- Sterk geïsoleerde keldervloer en dak met JACKODUR of gelijkwaardig
- Geïsoleerde spouwmuren
- Binnen- en buitenvloertegels van GRESPANIA 600x600 - 800x800 - 1200x1200 (kleur en formaat naar keuze)
- Badkamerwanden met COVERLAM platen 2700X1200 (Kleur naar keuze)
- Badkamers van ROCA
- Aerothermie/airconditioning
- Lift van Schindler
- Vloerverwarming in de gehele villa
- Plafondhoge ramen met een verzonken rail, 5+5/kamer/6+6
- Plafondhoge en 1 meter brede deuren
- Plafondhoge taatsdeur en 1,50 ras
- Volledig ingerichte keuken met deuren in aluminium frame en voorzien van COVERLAM (Kleur naar keuze)
- Eiland met COVERLAM 3600X1600 geen zichtbare voegen
- Witgoed van Bosch van AEG (keuze constructeur)
- Stopcontacten, schakelaars en dimmers van NIESSEN
- Verwarmd zwembad
- 20 voltaïsche panelen
- 2 lithiumbatterijen van elk 10kW
- Auto-lader
- Huis
Wij zijn een bouwbedrijf, Key-in-Hand, dat elke mogelijkheid die je maar kunt bedenken kan ontwerpen en bouwen. Als u geen ontwerp van ons ziet dat u bevalt, ontwerpen wij een totaal nieuwe villa voor u op basis van uw ideeën en inbreng.
Hoewel we de voorkeur geven aan ecologisch bouwen, kunnen we van traditionele bouw tot ecologische constructies bouwen, het hangt allemaal van jou af.
Houd er rekening mee dat de locatie die op deze kaart wordt weergegeven NIET de werkelijke locatie is, maar de algemene locatie en er kan niet op worden vertrouwd.
Extra's
Overdekt terras
Tillen
Privéterras
Opslagruimte
Ensuite badkamer
Dubbele beglazing
Gemonteerde kasten
Solarium
Wifi
Speelruimte
Gastappartement
Bijkeuken
Barbecu
Domotica
Restaurant ter plaatse
Kelder
Glasvezel
Toegang voor mensen met verminderde mobiliteit
Zonoriëntatie
Oosten
Zuiden
West
Zuidoost
Zuidwesten
Klimaatbeheersing
Airconditioning
Koud A/C
Hete a/c
Haard
U/F verwarming
U/f/h Badkamers
Uitzicht
Berg
Panorama
Land
Tuin
Zwembad
Ligging
Dicht bij golf
Verstedelijking
Dicht bij scholen
Dicht bij bos
Zwembad
Verwarmd
Privé
Gemeenschapskosten: €0 / maandelijks
Vergoedingen voor afvalverwijdering: €0 / jaarlijks
IBI ( Belasting over onroerend goed ): €0 / jaarlijks