OFF-PLAN ECOLOGISCHE HEDENDAAGSE VILLA - SLEUTEL-IN-HAND in Monte Mayor met uitzicht over de groene vallei, deze woning heeft het allemaal, dit wordt een waar pareltje voor wie houdt van ruimte, luxe en kwaliteit!
Deze luxe villa wordt gebouwd op een perceel van 7.250,00 m2 en bestaat uit 3 verdiepingen, alle materialen zoals de keuken, vloeren en badkamerwanden zullen van het gerenommeerde bedrijf Grespania zijn.
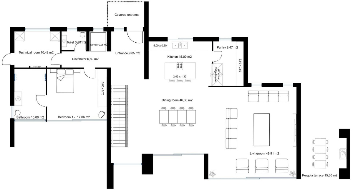
Begane grond: Pergola carport met gemotoriseerde toegangspoort, inkomhal met dubbel hoog plafond, lift, een verdeler die leidt naar het gastentoilet, technische ruimte en een slaapkamer met een grote en-suite badkamer en een eigen terras. Verder heb je op deze verdieping een enorme eetkamer met een op maat gemaakte open keuken volledig uitgerust met Bosch apparatuur, een bijkeuken en een grote woonkamer. Zowel de eetkamer als de woonkamer geven toegang tot de grote, overdekte terrassen, en voor degenen die van zwemmen of spetteren houden, is er een enorm zwembad van 80 m2 met een kinderbad, een bronzinggedeelte met water en een chill-out. Er is bestrating rondom de volledige villa om de toegang tot de verschillende delen van de tuin en de villa gemakkelijk te maken. De tuin zal gemakkelijk te onderhouden zijn en volledig omheind met een 2 meter hoog gegalvaniseerd sterk hekwerk.
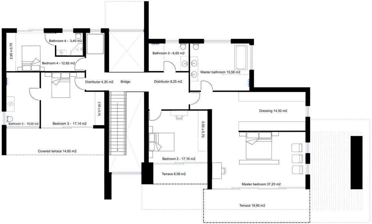
Eerste verdieping: Via de trap of lift komt u op een overloop die de eerste verdieping in 2 delen verdeelt. Aan de ene kant heb je 2 slaapkamers met elk een en-suite badkamer en één van de slaapkamers heeft een eigen terras. Aan de andere kant heb je een slaapkamer met badkamer en een eigen terras. En natuurlijk heb je op deze verdieping de hoofdslaapkamer met een enorme dressing, en-suite badkamer en een groot terras.
Kelder/Garage: De garage biedt ruimte voor 4 grote auto's, verder beschikt u over de technische poolruimte, een toilet en de autolift. De opslagruimte kan worden omgebouwd tot speelkamer of bioscoopkamer
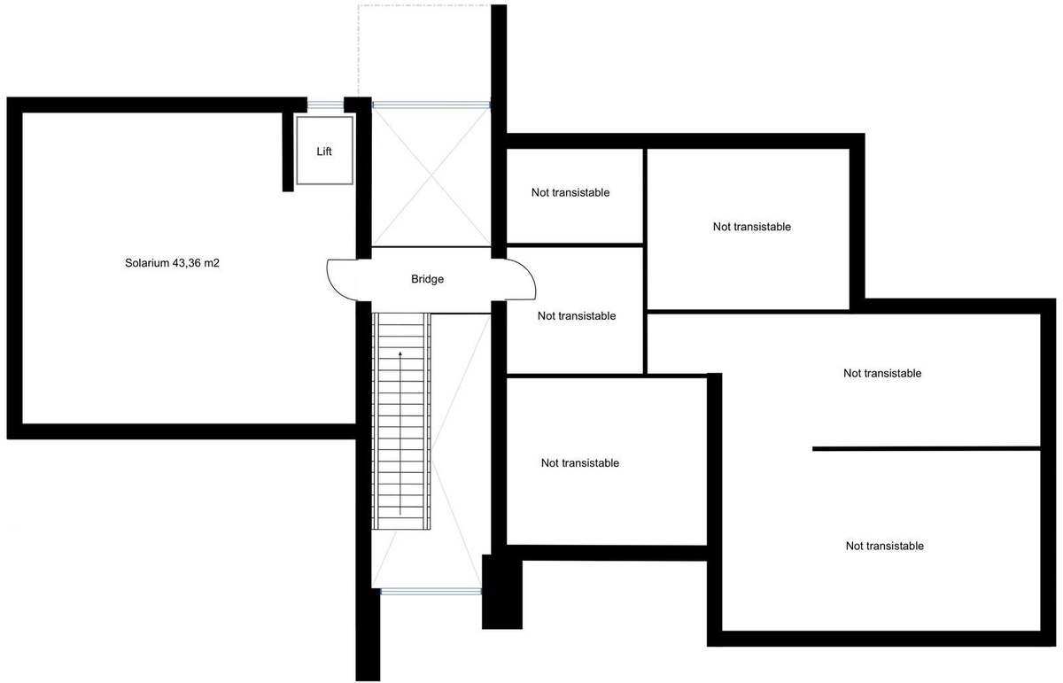
Solarium van 45 m2 omgeven door glas voor privacy
FOTO'S VAN KEUKENS EN BADKAMERS ZIJN SLECHTS VOORBEELDEN, DE EINDKEUZE ZAL DIE VAN DE KLANT ZIJN!
Voorbeeld van enkele specificaties,
- Vloertegels voor binnen en buiten van GRESPANIA 600x600 – 800x800 - 1200x1200 (kleur en maat naar keuze)
- Badkamerwanden met COVERLAM-platen (GRESPANIA) 2700X1200 (Kleur naar keuze)
- Badkamers van ROCA – DURAVIT – VILLEROY BOCH – GEBERIT – HANSGROHE OF SOORTGELIJK
- Aerothermie/airconditioning
- Lift van Schindler of vergelijkbaar
- Vloerverwarming in de volledige villa
- Plafondhoge ramen met verzonken spoor, 5+5/kamer/4+4
- Plafondhoge en 1 meter brede binnendeuren
- Volledig ingerichte keuken met aluminium framedeuren en bedekt met COVERLAM (kleur naar keuze)
- Eiland met COVERLAM 3600X1600 geen zichtbare voegen (kleur naar keuze)
- Witgoed van Bosch of AEG
- Verwarmd zwembad
- 30 zonnepanelen
- 3 lithiumbatterijen van elk 10 kW
- Autolader
- Domotica
Wij zijn een bouwbedrijf, Key-in-Hand, dat elke mogelijkheid die je maar kunt bedenken kan ontwerpen en bouwen. Als je geen ontwerp van ons ziet dat je mooi vindt, ontwerpen we een totaal nieuwe villa voor je volgens jouw ideeën en input.
Hoewel we de voorkeur geven aan ecologisch bouwen, kunnen we van traditionele bouw tot ecologische constructies bouwen, het hangt allemaal van jou af.
Houd er rekening mee dat de locatie die op deze kaart wordt weergegeven NIET de werkelijke locatie is, maar de algemene locatie en er kan niet op worden vertrouwd.
Extra's
Overdekt terras
Tillen
Privéterras
Opslagruimte
Ensuite badkamer
Dubbele beglazing
Gemonteerde kasten
Solarium
Sportschool
Speelruimte
Tennisbaan
Bijkeuken
Jacuzzi
Barbecu
Restaurant ter plaatse
Kelder
Glasvezel
Toegang voor mensen met verminderde mobiliteit
Zonoriëntatie
Oosten
Zuiden
West
Zuidoost
Zuidwesten
Klimaatbeheersing
Airconditioning
Koud A/C
Hete a/c
Haard
U/F verwarming
U/f/h Badkamers
Uitzicht
Berg
Panorama
Land
Tuin
Zwembad
Woud
Ligging
Dicht bij golf
Verstedelijking
Berg Pueblo
Dicht bij bos
Huidige Staat
Nieuwbouw
Zwembad
Privé
Kinderen zwembad
Meubilering
Optioneel
Keuken
Volledig passend
Tuin
Privé
Gemakkelijk onderhoud
Beveiliging
24 -uurs beveiliging
Alarmsysteem
Elektrische jaloezieën
Invoertelefoon
Veilig
Parkeergelegenheid
Ondergronds
Garage
Privé
Bedekt
Open
Meer dan één
Voorzieningen
Elektriciteit
Drinkbaar water
Telefoon
Fotovoltaïsche zonnepanelen
Zonne -waterverwarming
Categorie
Investering
Golf
Luxe
Buiten plan
Modern
Gemeenschapskosten: €0 / maandelijks
Vergoedingen voor afvalverwijdering: €0 / jaarlijks
IBI ( Belasting over onroerend goed ): €0 / jaarlijks