OFF PLAN - HEDENDAAGSE ECOLOGISCHE VILLA IN LA QUINTA, BENAHAVIS IN URB. LOS ALMENDROS met panoramisch uitzicht en uitzicht en op 6,5 km van het strand.
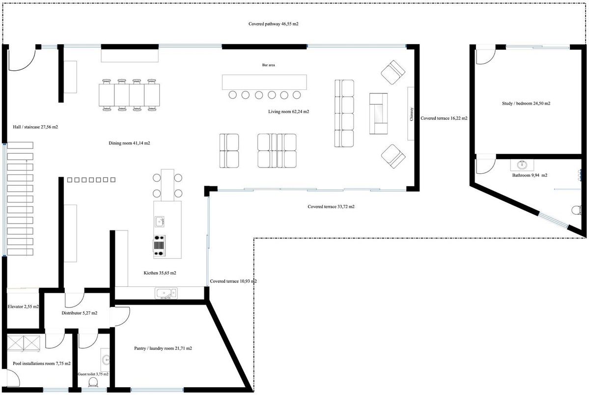
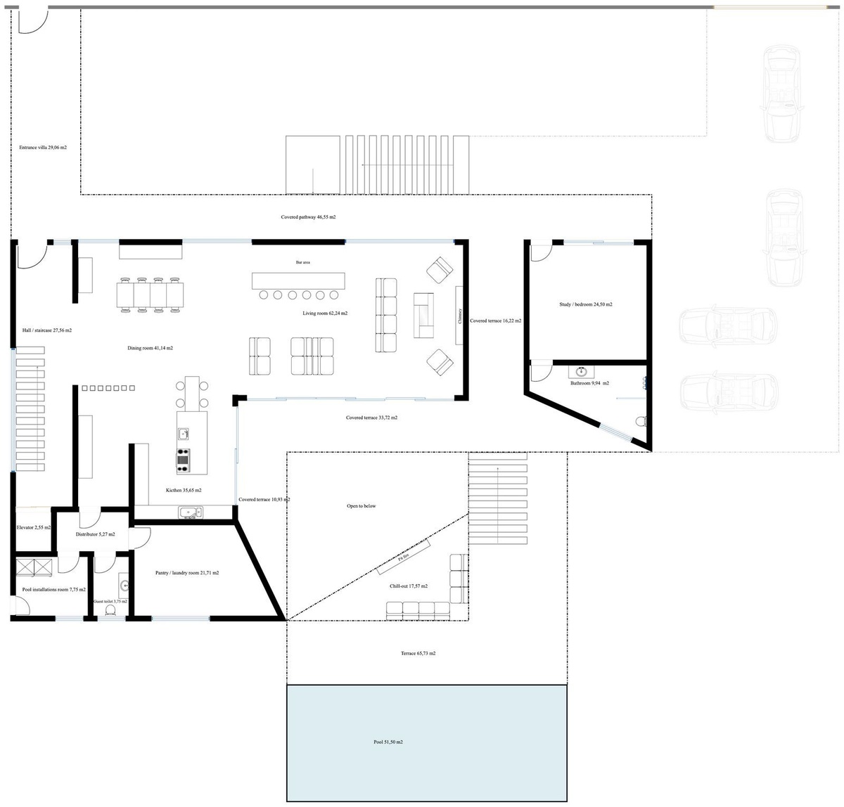
De begane grond: entree, hal met lift, gastentoilet, technische installatieruimte, ruime woon-/eetkamer met grote open volledig ingerichte keuken met Bosch apparatuur en aparte bijkeuken, verder is er op deze verdieping een aparte slaap-/werkkamer met en-suite badkamer, grote, overdekte terrassen met uitzicht op het grote verwarmde zwembad van 51,50 m2.
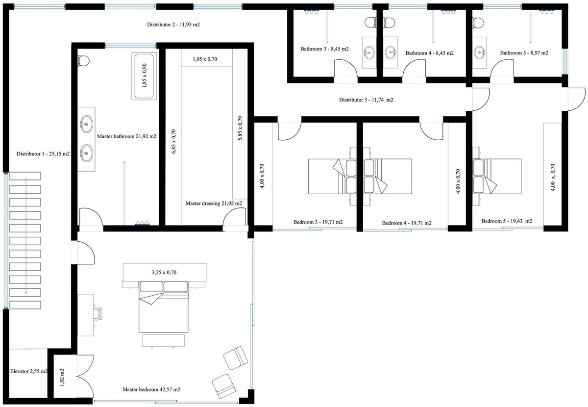
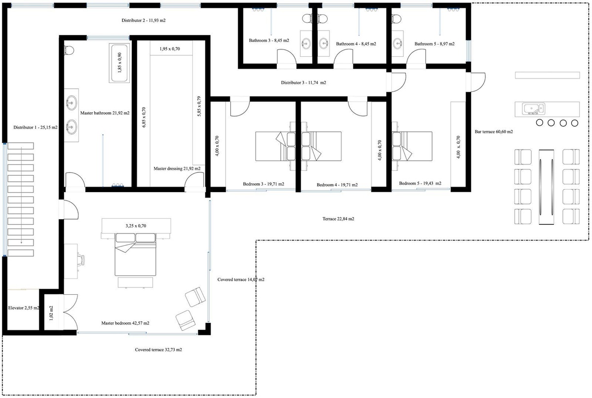
Op de eerste verdieping: lift, overloop, hoofdslaapkamer met hoofdbadkamer en grote kleedkamer en natuurlijk een enorm privéterras. Een gang leidt je naar nog eens 3 slaapkamers met 3 badkamers waarvan 1 ensuite en een terras dat toegankelijk is voor alle 3 de slaapkamers.
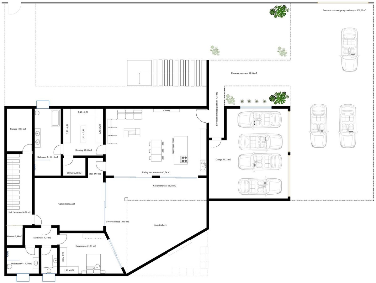
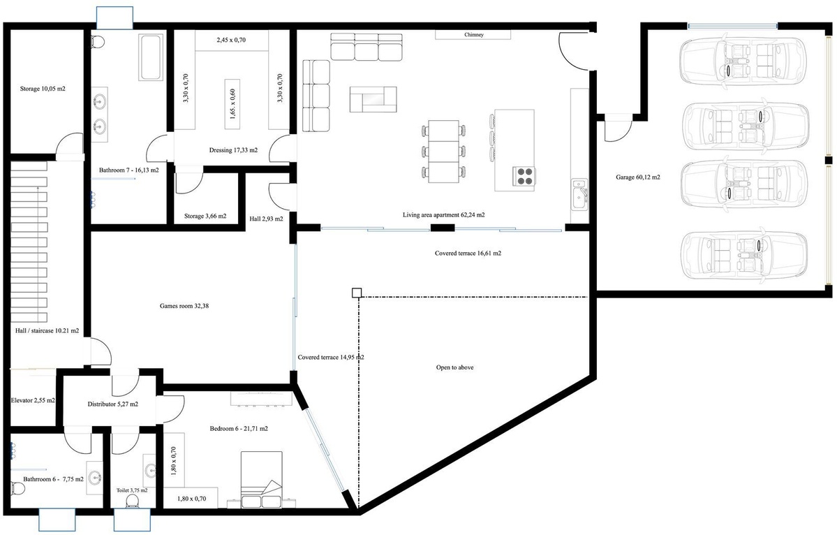
In de halve kelder heb je een enorme carport met een trap met een pad dat je naar de hoofdingang leidt.
Verder brengt de lift je naar deze verdieping waar je nog een slaapkamer vindt met een badkamer ensuite, een apart appartement/slaapkamer en een speelkamer.
Er is een volledig apart appartement met een woon-/ingerichte keuken/slaapkamer, een kleedkamer en een badkamer ensuite. Het aparte appartement is toegankelijk via de garage, maar kan ook worden bereikt via de lift.
Bouwtijd ongeveer 12 tot 14 maanden na vergunningen.
Foto's van badkamers en keukens zijn slechts voorbeelden van hoe ze eruit zouden kunnen zien, de uiteindelijke keuze is aan de klant.
Voorbeeld van enkele specificaties,
- Vloertegels binnen en buiten van GRESPANIA 600x600 - 800x800 - 1200x1200 (kleur en formaat zelf te kiezen)
- Badkamerwanden met COVERLAM platen (GRESPANIA) 2700X1200 (Kleur te kiezen)
- Badkamers van ROCA - VILLEROY BOCH - DURAVIT of gelijkwaardig
- Aerothermie/airconditioning
- Lift van Schindler of gelijkwaardig
- Vloerverwarming in de gehele villa
- Plafondhoge ramen met een verzonken spoor, 5+5/kamer/6+6
- Plafondhoge en 1-meter brede HPL binnendeuren, 30dB
- Plafondhoge taatsdeur en 1,50 ras
- Volledig ingerichte keuken met deuren in aluminium frame en bedekt met COVERLAM (Kleur naar keuze)
- Eiland met COVERLAM 3600X1600 zonder zichtbare voegen (kleur te kiezen)
- Witgoed van Bosch - AEG of MIELE
- Verwarmd zwembad met automatische afdekking
- 20 zonnepanelen
- 3 lithium batterijen van elk 10kW
- Autolader
- Domotica
Wij zijn een bouwbedrijf, Key-in-Hand, dat elke mogelijkheid die je maar kunt bedenken kan ontwerpen en bouwen. Als je geen ontwerp van ons ziet dat je mooi vindt, ontwerpen we een totaal nieuwe villa voor je volgens jouw ideeën en input.
Hoewel we de voorkeur geven aan ecologisch bouwen, kunnen we van traditionele bouw tot ecologische constructies bouwen, het hangt allemaal van jou af.
Houd er rekening mee dat de locatie die op deze kaart wordt weergegeven NIET de werkelijke locatie is, maar de algemene locatie en er kan niet op worden vertrouwd.
Extra's
Overdekt terras
Tillen
Privéterras
Opslagruimte
Ensuite badkamer
Dubbele beglazing
Gemonteerde kasten
Wifi
Tennisbaan
Gastappartement
Gasthuis
Bijkeuken
Jacuzzi
Barbecu
Domotica
Kelder
Glasvezel
Toegang voor mensen met verminderde mobiliteit
Zonoriëntatie
Oosten
West
Zuidoost
Zuidwesten
Klimaatbeheersing
Airconditioning
Koud A/C
Hete a/c
Haard
U/F verwarming
U/f/h Badkamers
Uitzicht
Berg
Panorama
Land
Tuin
Zwembad
Stedelijk
Straat
Ligging
Dicht bij golf
Verstedelijking
Dicht bij winkels
Dicht bij de stad
Dicht bij scholen
Huidige Staat
Nieuwbouw
Zwembad
Verwarmd
Privé
Meubilering
Optioneel
Keuken
Volledig passend
Tuin
Privé
Gemakkelijk onderhoud
Beveiliging
Alarmsysteem
Invoertelefoon
Veilig
Parkeergelegenheid
Ondergronds
Garage
Privé
Bedekt
Open
Meer dan één
Voorzieningen
Elektriciteit
Drinkbaar water
Telefoon
Fotovoltaïsche zonnepanelen
Zonne -waterverwarming
Categorie
Vakantiehuizen
Investering
Golf
Luxe
Buiten plan
Modern
Gemeenschapskosten: €0 / maandelijks
Vergoedingen voor afvalverwijdering: €0 / jaarlijks
IBI ( Belasting over onroerend goed ): €0 / jaarlijks