Pinares de San Antón is one of Málaga East’s most established residential enclaves, calm, green, and discreet, yet still close enough to feel connected to the city every day.
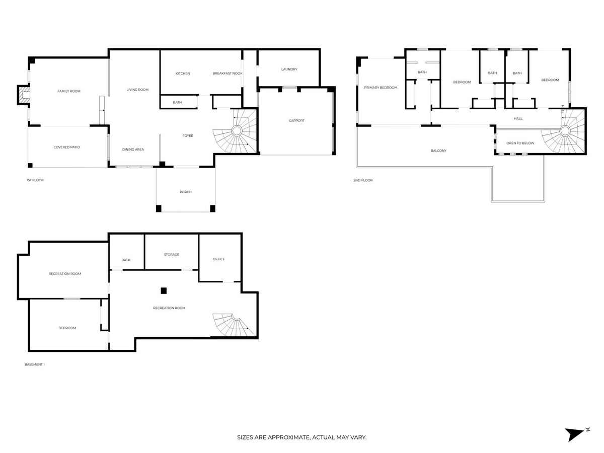
This villa sits on a 1,000 m² plot and offers 381.5 m² built across three levels, designed for families who want light, outdoor living, and privacy, without sacrificing access to schools, the sea, and Málaga’s cultural centre.
On the main floor, the home opens into a generous living and dining space with large windows and a direct connection to the terrace, garden and pool, the kind of layout that makes daily life easy, and entertaining effortless. A fireplace adds warmth in winter, and marble flooring brings a timeless, elegant feel throughout.
The upper level is dedicated to rest and calm, with three spacious en-suite bedrooms, each opening onto terraces where the sea views become part of your morning routine.
The lower floor adds flexibility: a large multi-purpose area and additional rooms ideal for a gym, cinema room, playroom, storage, or guest zone, giving you the space to adapt the house to the way you actually live.
Outside, you’ll find a mature garden and private pool framed by greenery, a peaceful setting for long lunches, family weekends and quiet evenings under the Málaga sky.
A rare opportunity in Málaga East for buyers who want a true family home with sea views, in one of the city’s most desirable hillside neighbourhoods.
Tenga en cuenta que la ubicación mostrada en este mapa NO corresponde a la propiedad real, sino a la ubicación general y no es fiable.
Características
Terraza
Transporte cercano
Terraza
Trastero
Baño privado
Armarios ajustados
Solárium
Gimnasia
Barbacoa
Cerca de la iglesia
Sótano
Climatización
Aire acondicionado
Hogar
Calefacción central
Vistas
Mar
Montaña
Vistas panorámicas
País
Jardín
Piscina
Posición
Cerca del golf
Cerca de las tiendas
Cerca de la ciudad
Cerca de las escuelas
Seguridad
Sistema de alarma
Persianas
Gastos de comunidad: 0 euros / mes
Tasas de eliminación de residuos: 0 euros / año
IBI ( Impuesto sobre Bienes Inmuebles ): 0 euros / año