Urban Development Land – Mijas Pueblo – Costa del Sol.
Magnificent urban plot for sale in a highly sought-after area. The plot is surrounded by mature trees, ensuring privacy. One minute by car from the centre of Mijas Pueblo.
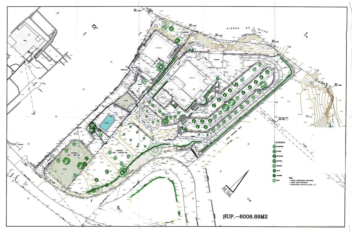
A Detailed Development Study ("Estudio de Detalle) has already been approved to build 11 townhouses and 1 villa.
________________________________________
Technical Data:
• The plot is located in sector U.E. S-19 of Mijas
• It complies with all boundary limits established in the alignment plans
• Total surface area: 6,008.89 m² according to IBI records (4,188.89 m² + 1,820.00 m²)
________________________________________
According to the Mijas PGOU, the following construction limits apply:
• Building coefficient: 0.35 m²/m²
• Number of permitted properties: 1 residence per 500 m²
• Maximum number of floors: 2
TOTAL BUILDABLE AREA ACCORDING TO PGOU: 2,103.11 m² (maximum 12 dwellings)
________________________________________
The approved Detailed Development Study proposes:
• Buildable area: 1,918.74 m²
• Number of dwellings: 12
• Maximum height: 2 floors
• Plot coverage: 21.14%
• Parking spaces: 18
________________________________________
The PGOU classifies the plots as AIS-3. According to Article 229, section 4b of the PGOU, developments of semi-detached single-family housing (ADS) are permitted, processed through a Detailed Development Study.
The minimum plot size required for such developments in the AIS-3 Subzone is 4,000 m². In this case, the plot has 6,008.89 m².
Tenga en cuenta que la ubicación mostrada en este mapa NO corresponde a la propiedad real, sino a la ubicación general y no es fiable.
Orientación
Sur
Sudeste
Vistas
Mar
Montaña
Vistas panorámicas
País
Posición
Cerca de las tiendas
Cerca de las escuelas
País
Aldea
Pueblo de montaña
Cerca del bosque
Estado
Nueva construcción
Piscina
Habitación para la piscina
Seguridad
Complejo cerrado
Servicios Públicos
Electricidad
Agua potable
Categoría
Inversión
Fuera del plan
Reventa
Gastos de comunidad: 0 euros / mes
Tasas de eliminación de residuos: 0 euros / año
IBI ( Impuesto sobre Bienes Inmuebles ): 0 euros / año