Please note: For us to provide You with our best possible service, please leave your email and phone number when sending your enquiry. Thank you
Prime 880 m² Building Plot with project and structure in Estepona with sea and golf views – Ideal for Custom or Investment Development
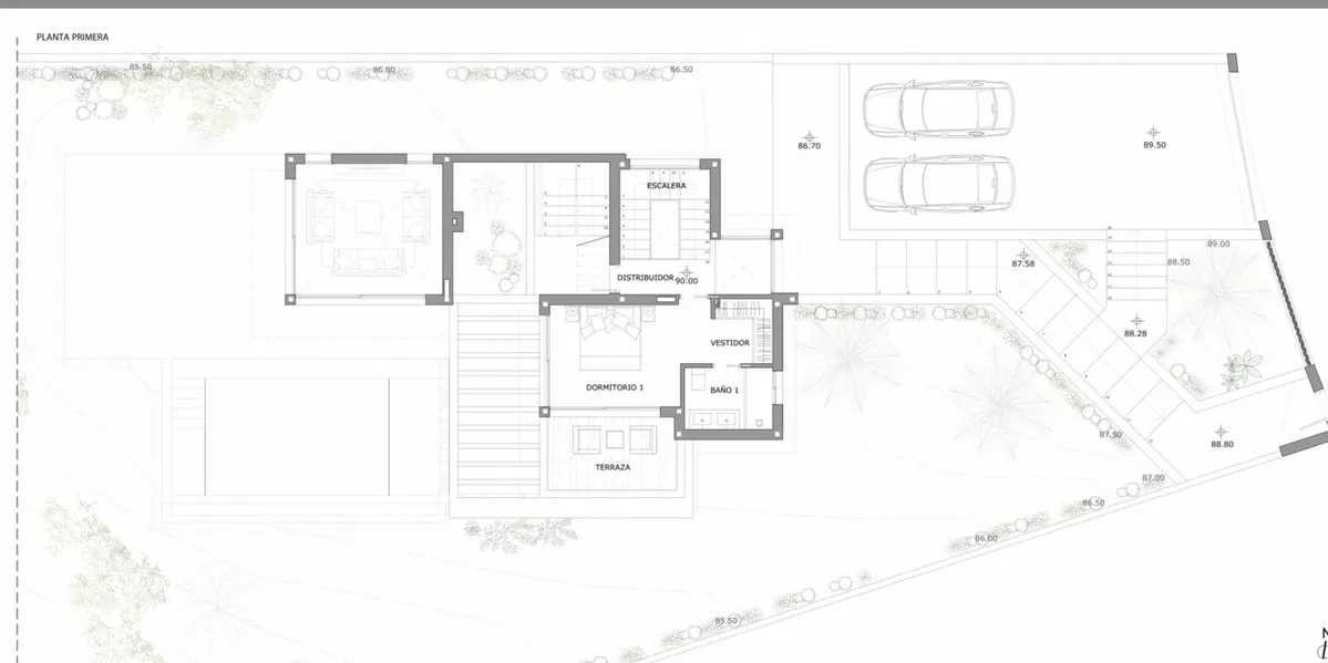
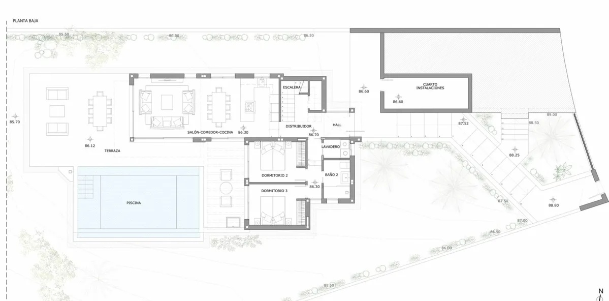
Esta parcela de 880,33 m² en una zona residencial en crecimiento de Estepona presenta una excelente oportunidad para desarrollar una villa privada a pocos minutos de la playa, campos de golf y todos los servicios locales.
La propiedad incluye los cimientos existentes, lo que ofrece al futuro propietario dos opciones claras:
Opción 1: Construir un chalet a partir de los cimientos estructurales existentes (proyecto de ejecución disponible).
Opción 2: Eliminar los cimientos actuales y desarrollar un diseño completamente nuevo desde cero.
En ambos casos, el comprador tendrá que solicitar una licencia de obras en el ayuntamiento.
Situada en una zona tranquila pero bien comunicada de Estepona, esta parcela es ideal para compradores privados, promotores o inversores que busquen construir una villa moderna con piscina, jardín y espacios abiertos. Con buena exposición al sol y fácil acceso a la ciudad de Estepona, Marbella, Puerto Banús y el aeropuerto de Málaga, la ubicación ofrece valor a largo plazo y atractivo estilo de vida.
NUESTRA AGENCIA ESTÁ REDEFINIENDO LA EXPERIENCIA INMOBILIARIA CON UNA DEDICACIÓN AL SERVICIO SIN FISURAS Y CENTRADO EN EL CLIENTE.
Nuestra misión va mucho más allá de las transacciones inmobiliarias: ofrecemos un viaje completo y elevado a la propiedad inmobiliaria, diseñado para que cada paso sea lo más fluido y libre de estrés posible.
Gracias a nuestra asistencia especializada en visados, simplificamos el traslado internacional gestionando de forma experta las complejidades legales y administrativas para usted y su familia. Para que su comienzo en España sea aún más fácil, también ofrecemos asistencia N.I.E. gratuita, eliminando obstáculos burocráticos y ahorrándole un tiempo valioso.
Entendemos que cada inversión es importante. Por eso, nuestro equipo interno de intermediación hipotecaria trabaja sin descanso para garantizar las condiciones más competitivas adaptadas a su perfil financiero exclusivo, haciendo que sus sueños inmobiliarios sean más alcanzables que nunca.
Nuestro enfoque es claro y directo: usted trata exclusivamente con nosotros, sin intermediarios innecesarios. Esto garantiza un proceso de compra transparente y ágil. También ofrecemos asesoramiento jurídico gratuito para salvaguardar su inversión y garantizar la protección de sus intereses en todo momento.
se beneficiará de un acceso exclusivo a propiedades de primera calidad, ofrecidas por nuestros agentes especializados, que poseen un profundo conocimiento del mercado y acceso a oportunidades fuera de mercado. No se trata solo de encontrar una propiedad, sino de crear una experiencia personalizada que se adapte a su estilo de vida y a su visión a largo plazo.
no sólo vendemos propiedades - le ayudamos a construir su futuro, con cuidado, claridad y confianza.
Características principales:
Parcela: 880,33 m²
Apto para construir un chalet con piscina
Quiet residential setting with sea and golf views
Cerca de golf, playas y servicios
Excelente potencial de inversión
No pierda la oportunidad de construir su casa ideal en una de las zonas costeras más atractivas del sur de España.
DÉJANOS MOVERTE
Tenga en cuenta que la ubicación mostrada en este mapa NO corresponde a la propiedad real, sino a la ubicación general y no es fiable.
Orientación
Suroeste
Vistas
Mar
Montaña
Vistas panorámicas
País
Golf
Posición
Cerca del puerto
Cerca del mar
Cerca de las tiendas
Cerca de la ciudad
Cerca de las escuelas
Gastos de comunidad: 0 euros / mes
Tasas de eliminación de residuos: 0 euros / año
IBI ( Impuesto sobre Bienes Inmuebles ): 0 euros / año