CENTRICO LOCAL EN COIN, IDEAL PARA NEGOCIO O VIVIENDA
Este versátil local de 106 m², ubicado en pleno centro de Coín, ofrece múltiples posibilidades de uso, incluida la opción de adaptarlo como vivienda. Su ubicación es inmejorable: a pocos pasos de un aparcamiento y a solo 5 minutos de la estación de autobuses, en una zona de gran accesibilidad y movimiento comercial.
Durante muchos años, este espacio funcionó como clínica estética, atrayendo a una amplia clientela gracias a su privilegiada ubicación.
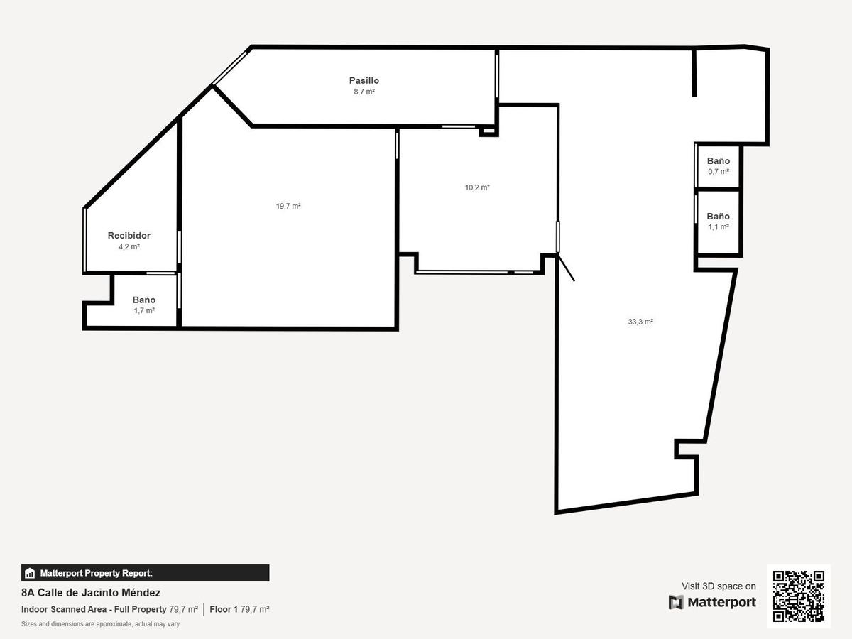
El local se compone de un recibidor, dos aseos, un trastero con calentador eléctrico y cuatro salas (dos amplias y dos más pequeñas).
Este espacio destaca por su gran potencial, siendo ideal para quienes buscan un local para actividad comercial en el corazón de Coín.
Tenga en cuenta que la ubicación mostrada en este mapa NO corresponde a la propiedad real, sino a la ubicación general y no es fiable.
Posición
Cerca de las tiendas
Aldea
Estado
Requerido la renovación
Muebles
Sin Amueblar
Servicios Públicos
Electricidad
Categoría
Inversión
Gastos de comunidad: 0 euros / mes
Tasas de eliminación de residuos: 0 euros / año
IBI ( Impuesto sobre Bienes Inmuebles ): 0 euros / año