Conecte con la naturaleza en estos preciosos chalets de 3 plantas a las afueras de Coín.
Su gran ventanal de suelo a techo, en planta baja, te hace confundir el lugar en el que estas; no se sabe si estás dentro o fuera, si estás en el salón o la terraza, porque es una sensación de continuidad total.
En cada espacio se siente la conexión con el entorno natural, el jardín, la terraza, el paisaje y, al mismo tiempo, el valle luminoso que te observa y al que tú también puedes mirar.
Su diseño está inspirado en la transparencia de un río cristalino, que te hace percibir en cada instante la belleza y conexión con el entorno natural.
Con su forma cúbica y modular, conseguimos grandes espacios abiertos que nos permiten vivir con relajación y comodidad.
El Sótano se distribuye en: zona de acceso de vehículos y peatonal a la vivienda, zona de aparcamiento, cuarto de instalaciones y ascensor.
La Planta Baja se distribuye en: salón, cocina-comedor, aseo, terraza cubierta y piscina.
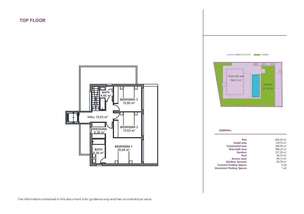
La Planta Alta se distribuye en: Dormitorio 1 con baño ensuite, vestidor y terraza cubierta; Dormitorio 2 armario y terraza cubierta; Dormitorio 3 con armario y terraza cubierta; Baño común.
El jardín se ha diseñado con árboles y plantas decorativas en la zona de la parcela que no se ha construido.
El diseño del chalet se ajustará a gusto del cliente; la ubicación y su construcción se realizará en el lugar y parcela escogida por el cliente y, los elementos de calidad serán elegidos por el cliente.
Tenga en cuenta que la ubicación mostrada en este mapa NO corresponde a la propiedad real, sino a la ubicación general y no es fiable.
Características
Terraza
Elevar
Transporte cercano
Terraza
Trastero
Baño privado
Armarios ajustados
Sala de servicios
Orientación
Sur
Climatización
Aire acondicionado
Vistas
Montaña
País
Vistas Urbanas
Calle
Posición
Cerca de las tiendas
Cerca de la ciudad
Estado
Excelente
Piscina
Piscina Privada
Muebles
Opcional
Cocina
Cocina Equipada
Jardin
Jardín Privado
Ajardinado
Mantenimiento fácil
Aparcamiento
Cochera
Párking Privado
Calle
Servicios Públicos
Electricidad
Agua potable
Categoría
Fuera del plan
Gastos de comunidad: 0 euros / mes
Tasas de eliminación de residuos: 0 euros / año
IBI ( Impuesto sobre Bienes Inmuebles ): 0 euros / año