*** Oportunidad de Inversión!!! *** Edificio para Renovar en Avda Reyes Católicos, Alhaurín de la Torre, Málaga *** Estudio de Viabilidad Realizado *** Uso Residencial *** Posibilidad de Construir Edificio Plurifamiliar de 9 Viviendas con Aparcamiento Subterráneo, Trasteros y Local Comercial *** 3 Plantas sobre Rasante (además de Sótano y Planta Baja) *** Ubicación Ideal: A 10 Minutos en Coche del Centro de Málaga ***
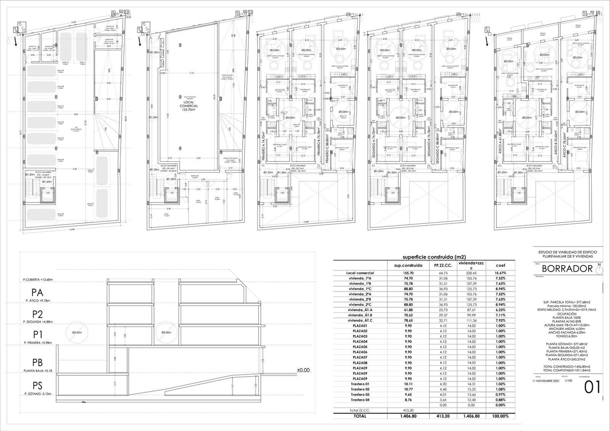
Esta es una gran oportunidad de inversión considerando las posibilidades del edificio, en el que es posible construir un total de nueve viviendas plurifamiliares, aparcamiento subterráneo (con nueve plazas y cuatro trasteros) y un local comercial de 156 m2. Es necesaria una renovación integral, en la que sería posible levantar dos plantas adicionales: ático y sótano.
El uso es residencial y ya existe un proyecto de obra con estudio de viabilidad, por lo que se podría empezar a comercializar en un plazo de seis meses desde su compra.
Su ubicación es ideal, ya que se encuentra en una de las avenidas más céntricas de Alhaurín de la Torre, un municipio tranquilo y seguro a tan solo diez minutos en coche del centro de Málaga y la playa.
Para más información, contacte con nosotros.
Tenga en cuenta que la ubicación mostrada en este mapa NO corresponde a la propiedad real, sino a la ubicación general y no es fiable.
Características
Terraza
Elevar
Transporte cercano
Terraza
Trastero
Baño privado
Armarios ajustados
Solárium
Sala de servicios
Alojamiento para el personal
Orientación
Norte
Sur
Sudeste
Noreste
Suroeste
Noroeste
Vistas
Montaña
Vistas panorámicas
Vistas Urbanas
Posición
Área comercial
Cerca de las tiendas
Cerca de la ciudad
Cerca de las escuelas
Ciudad
Estado
Requerido la renovación
Seguridad
Complejo cerrado
Caja fuerte
Servicios Públicos
Electricidad
Agua potable
Teléfono
Gas
Categoría
Inversión
Negociar
Barato
Fuera del plan
Reventa
Con permiso de planificación
Gastos de comunidad: 0 euros / mes
Tasas de eliminación de residuos: 0 euros / año
IBI ( Impuesto sobre Bienes Inmuebles ): 0 euros / año