Charmerende rækkehus i Puebla Aida, Mijas Golf med privat swimmingpool og stor terrasse
Din oase af ro!
Oplev den andalusiske charme i dette tre værelses rækkehus beliggende i den prestigefyldte Puebla Aida -udvikling i hjertet af Mijas Golf.
Dette smukke hjem tilbyder en unik blanding af luksus, komfort, der kan prale af en østlig orientering og betagende panoramaudsigt over den omgivende golfbane og majestætiske bjerge.
Beskrivelse:
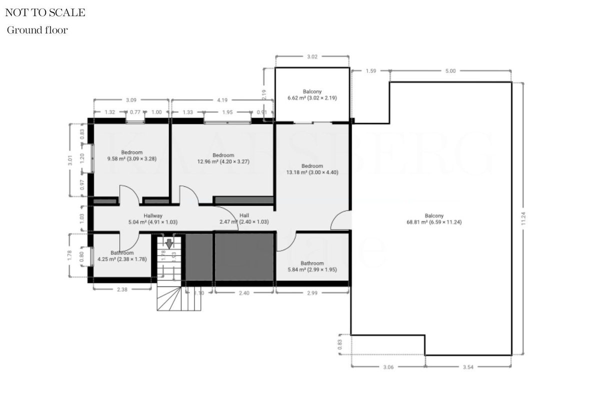
Når du kommer ind, er du velkommen af en elegant indgangshall, i stueetagen, hvor der er tre soveværelser, med monterede garderobeskabe og to badeværelser, er et af soveværelserne soveværelset og har egen adgang til terrassen og poolen.
På 1. sal finder du køkkenet og den rummelige stue/spisestue med en hyggelig pejs, der giver en perfekt ramme, til afslapning og underholdning.
Fra stuen kan du gå ud på terrassen og nyde havudsigten og heldagens sol.
Yderligere funktioner:
Alle vinduer er dobbeltvindue.
Opvarmning i alle værelser.
Monteret garderobe.
Loftsventilator.
Elektrisk pejs i stue/spisestue.
Stor terrasse med swimmingpool ideel til udendørs ophold og spisning.
Sikkerhedsboks.
Opbevaringsrum under trappe.
Aircondition A/C i alle værelser.
Fællesskabsfaciliteter:
Puebla Aida -komplekset står som et arkitektonisk mesterværk, der fremkalder atmosfæren i en gammel andalusisk landsby med mauriske påvirkninger.
Beboerne har adgang til 4 swimmingpoolområder, omhyggeligt velplejede haver, charmerende gangbroer, gyder, firkanter og rolige springvand, der skaber en atmosfære af tidløs ro.