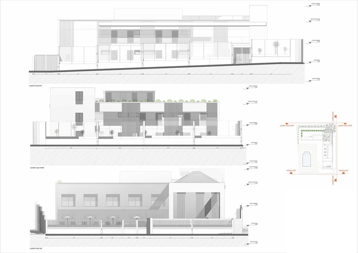
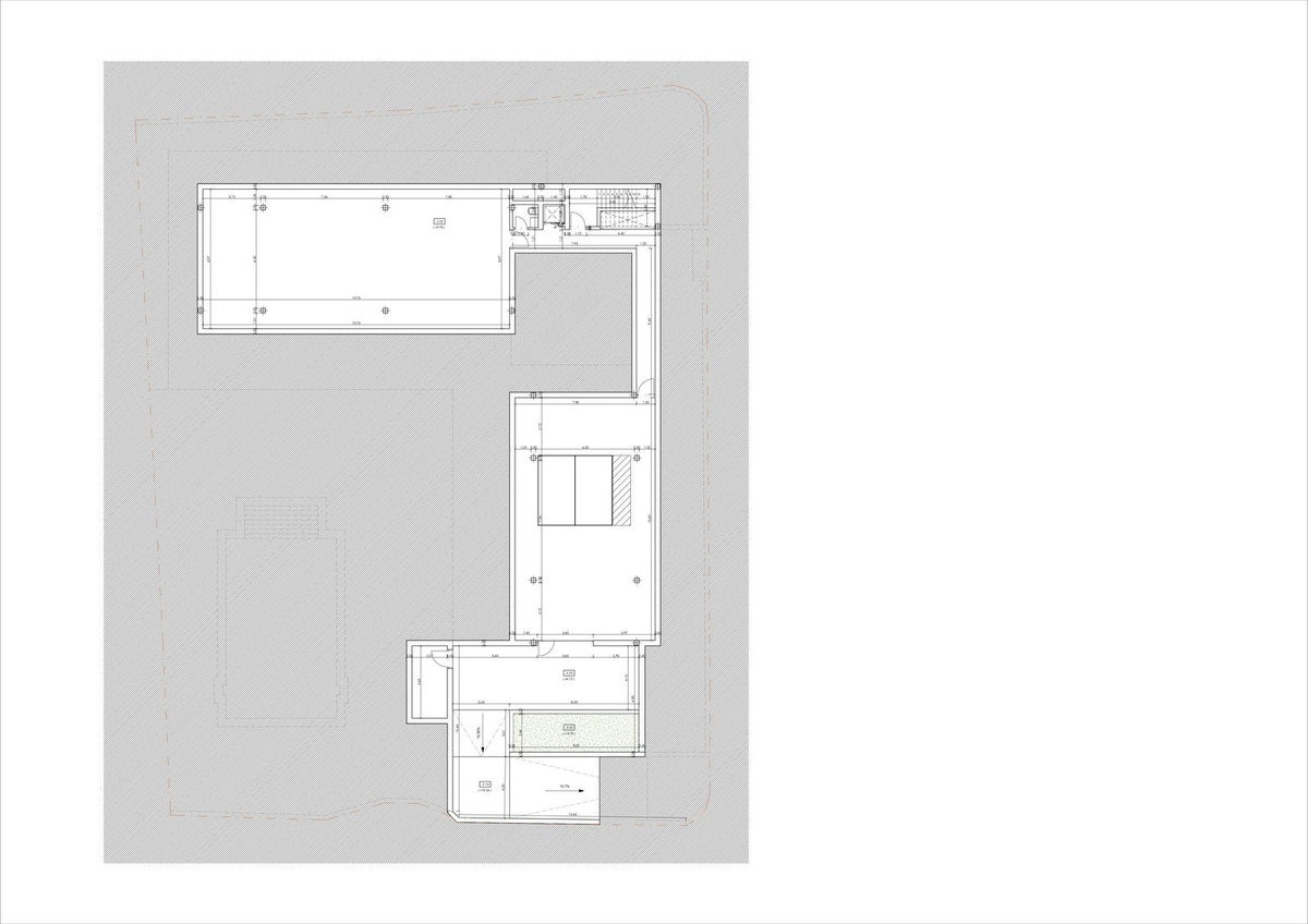
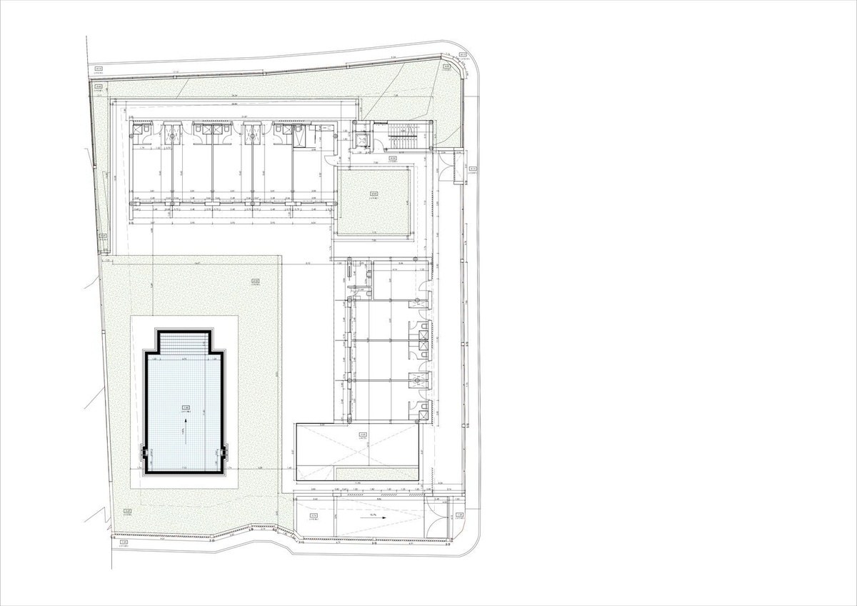
Et unikt projekt til et eksklusivt lejlighedshotel i Estepona, der ligger på en 1.633 m² stor grund. Det er muligt at bygge et lejlighedshotel med et areal på 1.197,57 m², med 2 etager, 18 lejligheder, en restaurant, en swimmingpool og en kælder. Beliggenheden er praktisk, tæt på byen, supermarkeder, faciliteter og stranden. Der er nem adgang til motorvejen. I nærheden ligger flere golfklubber som Santa Maria Golf, Valle Romano og Estepona Golf. Projektet kan prale af et moderne, up-to-date design af en professionel arkitekt. En fornuftig investering, der vil give et godt overskud.
Bemærk, at den placering, der vises på dette kort, IKKE er af denne faktiske ejendom, men af den generelle placering og ikke kan påberåbes.