Residential plot in Elviria, in the well-known area of Santa María Golf, just a step away from the golf course and all amenities, well-connected and only minutes away from Marbella and Puerto Banús, as well as the beach. It has access from two streets.
With a building capacity of 30%, suitable for an individual villa of 7.5m in height, allowing for a construction of 326m2 + basement + terraces + porches.
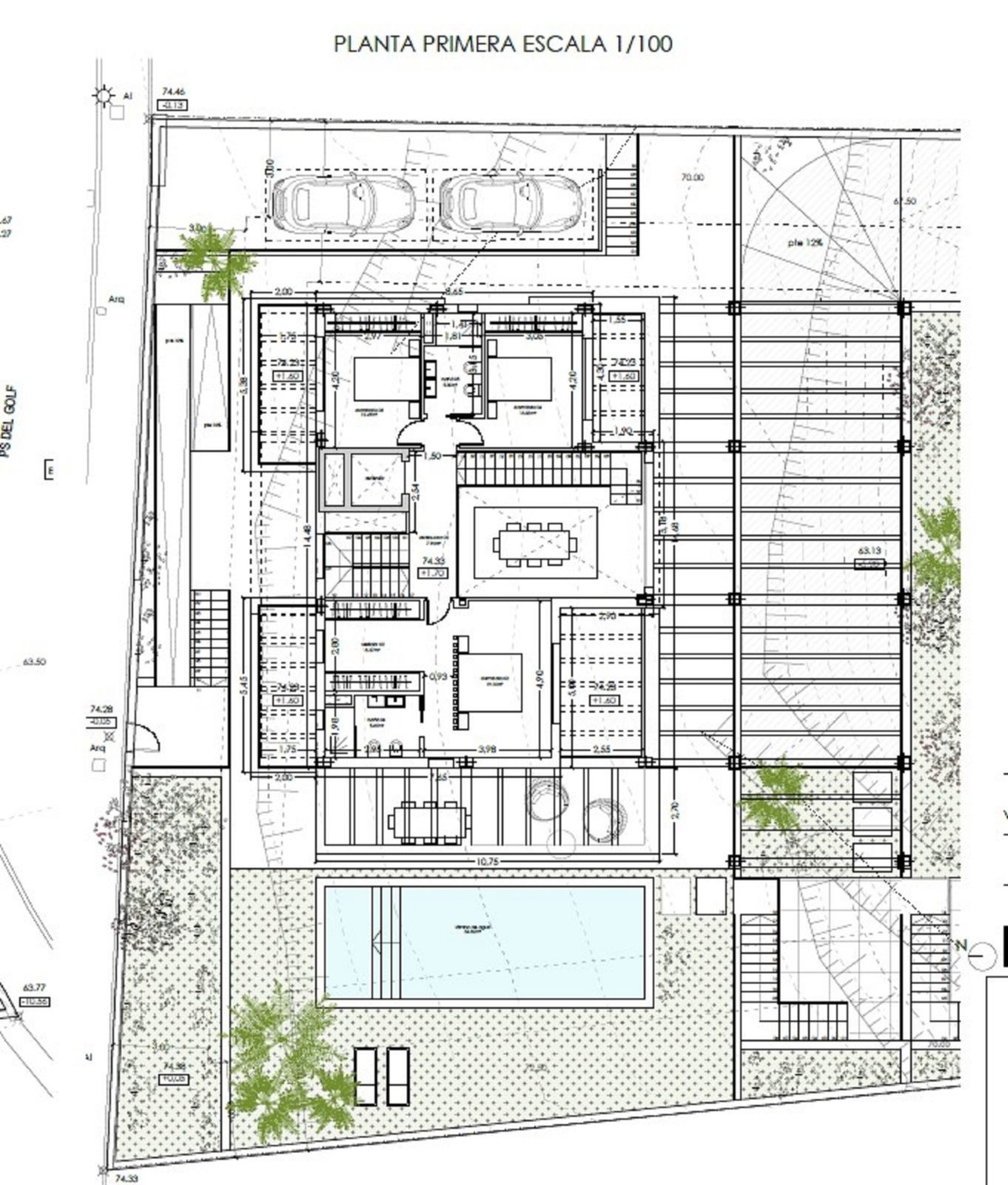
There is an available project with license, for the construction of a total of 484.53m2 villa spanning 4 floors.
The main floor would feature the entrance with access to a spacious open-style living and dining room with a kitchen, laundry room, and large windows leading directly to the terraces, gardens, and swimming pool. It would also include two bedrooms and two bathrooms, a dressing room, and access to the first floor via the staircase or elevator, where there would be three more bedrooms and two bathrooms, all with dressing rooms and terraces. Furthermore, from this floor, there would be access to a large solarium with a chill-out area, BBQ, jacuzzi, and incredible panoramic views.
The basement would include a gym, bathroom, cinema room, wine cellar, and a private garage for multiple cars. Additionally, there would be two interior courtyards providing natural light, making it very bright.
The exterior areas would be surrounded by gardens and a swimming pool with covered and uncovered terrace areas.
Пожалуйста, обратите внимание, что местоположение, указанное на карте, не относится к реальному объекту недвижимости, а представляет собой общее местоположение, и на него нельзя полагаться.